Телефон
+7 495 363 93 80          
Время работы
Пн.-Пт.: 09.00 -18.00
Email 
director@beriozkal.com

berezkavlygnikah@yandex.ru 

Административный центр 

Берёзка в Лужниках

Площадь здания - 2 851 м2 

Площадь подземной части - 1200 м2


Площадь надземной части - 1 651 м2


3 этажа

25 машиномест

Об административном центре "БЕРЕЗКА В ЛУЖНИКАХ"

Участок реконструируемого центра размещается в границах буферной зоны ансамбля Новодевичьего монастыря , внесенного в список наследия ЮНЕСКО, входит в зону регулирования застройки, зону охраняемого ландшафта. Предпроектные предложения прошли согласования в Центре Всемирного наследия ЮНЕСКО, Москомнаследии, Междунароном совете по охране исторических памятников и достопримечательностей (ICOMS), ГУ "Центр визуально-ландшафтного анализа и градостроительного регламента", допускающие реконструкцию  объекта.

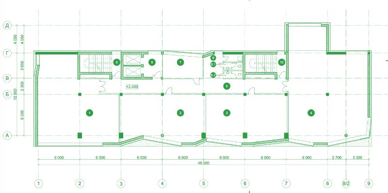
Экспликация помещений

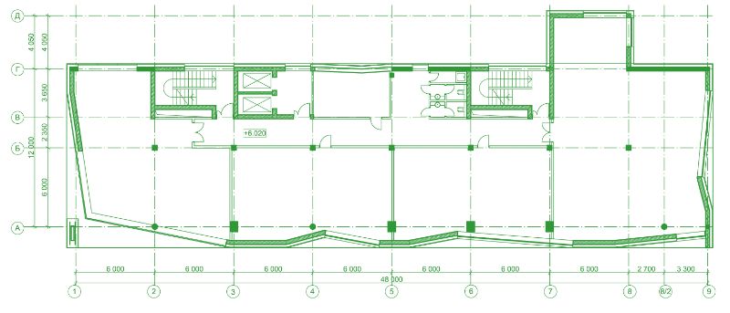
Схема плана 1 этажа

Общая площадь помещений: 370.9 м2
Общая площадь этажа: 440.6 м2

Схема плана 2 этажа

Общая площадь помещений: 567.6 м2
Общая площадь этажа: 629.6 м2


Схема плана 3 этажа

Общая площадь помещений: 567.6 м2
Общая площадь этажа: 609.6 м2

Информация об АО «Березка в Лужниках»

2026

СООБЩЕНИЕ о проведении годового заседания общего собрания акционеров за 2025 г. (дата публикации: 25.03.2026 16:40:00)

2025

Отчет об итогах голосования на общем собрании акционеров Акционерного общества "БЕРЁЗКА В ЛУЖНИКАХ" (дата публикации: 21.05.2025 12:32:00)

СООБЩЕНИЕ о проведении годового заседания общего собрания акционеров 19 мая 2025 г. (дата публикации: 24.04.2025 10:59:00)

2024

Отчет об итогах голосования на общем собрании акционеров Акционерного общества "БЕРЁЗКА В ЛУЖНИКАХ" (дата публикации: 05.06.2024 12:11:00)

СООБЩЕНИЕ о проведении годового общего собрания акционеров за 2024 год (дата публикации: 07.05.2024 11:24:00)

Документы

УСТАВ Акционерного общества "Берёзка в Лужниках" (дата публикации: 19.12.2023 12:11:00)

Перечень рекомендуемых мероприятий по улучшению условий труда (дата публикации: 31.10.2023 11:44:00)

ПОЛОЖЕНИЕ о защите персональных данных работников Акционерного общества «БЕРЕЗКА В ЛУЖНИКАХ» (дата публикации: 31.05.2023 11:45:00)

Сводная ведомость результатов проведения специальной оценки условий труда (дата публикации: 31.10.2023 11:41:00)